장애인 화장실 설치기준을 알아봐요. 거동이 불편하신 장애인분들의 편의시설로 전용 화장실이 있는 것을 많이 보셨을꺼에요. 대한민국의 공공기관같은 공공장소에는 필수적으로 설치 되는 장애인 화장실은 어느새 전국 설치율 80%가 넘어 주변에서 흔하게 찾을 수 있는 시설이 되었답니다. 만약 장애인 화장실 설치대상 건물이시라면 규격과 설치규정을 잘 살펴보셔야 해요. 거동이 불편한 장애인분들을 대상으로 만드는 편의시설이다 보니 정해진 규격을 엄격하게 적용하고 법안에서도 시설물의 크기와 규격이 정해져 있기 때문입니다.
장애인 화장실 설치기준은 공중화장실 등에 관한 법률 7조에 기재된 항목에 영향을 받는데 일부 발췌 해왔답니다.
<시장, 군수, 구청장은 대통령령으로 정하는 설치기준에 따라 공중화장실등에 장애인,노인,임산부 등이 사용할 수 있는 변기를 설치하여야 하며 이 경우 장애인,노인,임산부 등이 사용할 수 있는 변기의 설치에 관해서는 편의증진 보장에 관한 법률 제 8조를 적용 받게 됩니다.
편의증진 보장에 관한 법률은 시설의 구조와 재질의 세부기준을 알려주고 있어요. 그러니 꼭 이에 맞춰서 공사를 진행하는게 중요해요!

▶ 설치장소 ◀
1. 장애인등의 이용이 가능한 화장실은 장애인등의 접근이 가능한 통로에 연결하여 설치하여야 합니다.
2. 장애인용 변기와 세면대는 출입구(문)와 가까운 위치에 설치하여야 합니다.
▶ 재질과 마감 ◀
1. 화장실의 바닥면에는 높이차이를 두어서는 아니되며, 바닥표면은 물에 젖어도 미끄러지지 아니하는 재질로 마감하여야 합니다.
2. 화장실(장애인용 변기,세면대가 설치된 화장실이 일반 화장실과 별도로 설치된 경우에는 일반 화장실을 말한다)의 0.3미터 전면에는 점형 블록을 설치하거나 시각장애인이 감지할 수 있도록 바닥재의 질감 등을 달리하여야 합니다.


▶ 기타 설비 ◀
1. 화장실(장애인용 변기·세면대가 설치된 화장실이 일반 화장실과 별도로 설치된 경우에는 일반 화장실을 말한다)의 출입구(문)옆 벽면의 1.5미터 높이에는 남자용과 여자용을 구별할 수 있는 점자표지판을 부착 하고, 출입구(문)의 통과유효폭은 0.9미터 이상으로 하여야 합니다.
2. 세정장치, 수도꼭지 등은 광감지식, 누름버튼식 , 레버식 등 사용하기 쉬운 형태로 설치하여야 합니다.
3. 장애인복지시설은 시각장애인이 화장실(장애인용 변기·세면대가 설치된 화장실이 일반 화장실과 별도로 설치된 경우에는 일반 화장실을 말한다)의 위치를 쉽게 알 수 있도록 하기 위하여 안내표시와 함께 음성유도장치를 설치하여야 합니다.

▶ 활동공간 ◀
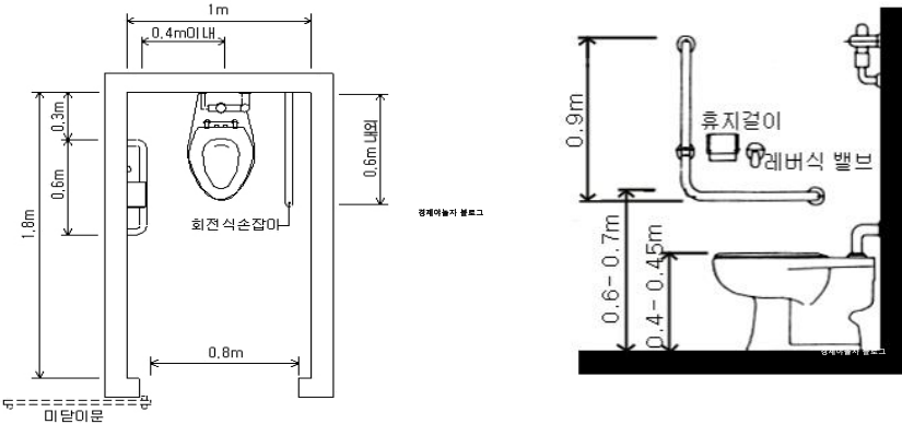
1. 건물을 신축하는 경우에는 대변기의 유효바닥면적이 폭 1.6미터 이상, 깊이 2.0미터 이상이 되도록 설치하여야 하며, 대변기의 좌측 또는 우측에는 휠체어의 측면접근을 위하여 유효폭 0.75미터 이상의 활동 공간을 확보하여야 합니다. 이 경우 대변기의 전면에는 휠체어가 회전할 수 있도록 1.4미터×1.4미터 이상의 활동공간을 확보하여야 해요.
2. 신축이 아닌 기존시설에 설치하는 경우로서 시설의 구조 등의 이유로 (가)의 기준에 따라 설치하기가 어려운 경우에 한하여 유효바닥면 적이 폭 1.0미터 이상, 깊이 1.8미터 이상이 되도록 설치하여야 합니다.
3. 출입문의 통과유효폭은 0.9미터 이상으로 하여야 합니다.
4. 출입문의 형태는 자동문, 미닫이문 또는 접이문 등으로 할 수 있으며, 여닫이문을 설치하는 경우에는 바깥쪽으로 개폐되도록 하여야 합니다. 다만, 휠체어사용자를 위하여 충분한 활동공간을 확보한 경우에는 안쪽으로 개폐되도록 할 수 있습니다.

▶ 구 조 ◀
1. 대변기는 등받이가 있는 양변기형태로 하되, 바닥부착형으로 하는 경우에는 변기 전면의 트랩부분에 휠체어의 발판이 닿지 아니하는 형태로 하여야 합니다.
2. 대변기의 좌대의 높이는 바닥면으로부터 0.4미터 이상 0.45미터 이하로 하여야 합니다.
▶ 손잡이 ◀
1. 대변기의 양옆에는 위 그림과 같이 수평 및 수직손잡이를 설치하되, 수평손잡이는 양쪽에 모두 설치하여야 하며, 수직손잡이는 한쪽에만 설치할 수 있습니다.
2. 수평손잡이는 바닥면으로부터 0.6미터 이상 0.7미터 이하의 높이에 설치하되, 한쪽 손잡이는 변기중심에서 0.4미터 이내의 지점에 고정하여 설치하여야 하며, 다른쪽 손잡이는 0.6미터 내외의 길이로 회전식으로 설치하여야 합니다. 이 경우 손잡이간의 간격은 0.7미터 내외로 할 수 있습니다.
3. 수직손잡이의 길이는 0.9미터 이상으로 하되, 손잡이의 제일 아랫부분이 바닥면으로부터 0.6미터 내외의 높이에 오도록 벽에 고정하여 설치하여야 합니다. 다만, 손잡이의 안전성 등 부득이한 사유로 벽에 설치 하는 것이 곤란한 경우에는 바닥에 고정하여 설치하되, 손잡이의 아랫 부분이 휠체어의 이동에 방해가 되지 아니하도록 하여야 합니다.
4. 장애인등의 이용편의를 위하여 수평손잡이와 수직손잡이는 이를 연결하여 설치할 수 있다. 이 경우 (다)의 수직손잡이의 제일 아랫부분의 높이는 연결되는 수평손잡이의 높이로 합니다.
5. 화장실의 크기가 2미터×2미터 이상인 경우에는 천장에 부착된 사다리형태의 손잡이를 설치할 수 있습니다.
▶ 기타 설비 ◀
1. 세정장치, 휴지걸이 등은 대변기에 앉은 상태에서 이용할 수 있는 위치에 설치하여야 합니다.
2. 출입문에는 화장실사용여부를 시각적으로 알 수 있는 설비 및 잠금 장치를 갖추어야 합니다.
3. 공공업무시설, 병원, 문화 및 집회시설, 장애인복지시설, 휴게소 등은 대변기 칸막이 내부에 세면기와 샤워기를 설치할 수 있습니다. 이 경우 세면기는 변기의 앞쪽에 최소 규모로 설치하여 대변기 칸막이 내부에서 휠체어가 회전하는데 불편이 없도록 하여야 하며, 세면기에 연결된 샤워기를 설치하되 바닥으로부터 0.8미터에서 1.2미터 높이에 설치하여야 합니다.
4. 화장실 내에서의 비상사태에 대비하여 비상용 벨은 대변기 가까운 곳에 바닥면으로부터 0.6미터와 0.9미터 사이의 높이에 설치하되, 바닥면으로부터 0.2미터 내외의 높이에서도 이용이 가능하도록 하여야 합니다.
▶ 구 조 ◀
소변기는 바닥부착형으로 할 수 있습니다.

▶ 손잡이 ◀
1. 소변기의 양옆에는 그림과 같이 수평 및 수직손잡이를 설치하여야 합니다.
2. 수평손잡이의 높이는 바닥면으로부터 0.8미터 이상 0.9미터 이하, 길이는 벽면으로부터 0.55미터 내외, 좌우 손잡이의 간격은 0.6미터 내외로 하여야 합니다.
3. 수직손잡이의 높이는 바닥면으로부터 1.1미터 이상 1.2미터 이하, 돌출폭은 벽면으로부터 0.25미터 내외로 하여야 하며, 하단부가 휠체어의 이동에 방해가 되지 아니하도록 하여야 합니다.
▶ 구 조 ◀
1. 휠체어 사용자용 세면대의 상단높이는 바닥면으로부터 0.85미터, 하단 높이는 0.65미터 이상으로 하여야 한다.
2. 세면대의 하부는 무릎 및 휠체어의 발판이 들어갈 수 있도록 하여야 합니다.


▶ 손잡이 및 기타 설비 ◀
1. 목발사용자 등 보행곤란자를 위하여 세면대의 양옆에는 수평손잡이를 설치할 수 있습니다.
2. 수도꼭지는 냉,온수의 구분을 점자로 표시하여야 합니다.
3. 휠체어사용자용 세면대의 거울은 아래의 그림과 같이 세로길이 0.65미터 이상, 하단 높이는 바닥면으로부터 0.9미터 내외로 설치할 수 있으며, 거울상단부분은 15도정도 앞으로 경사지게 하거나 전면거울을 설치할 수 있습니다.